VME64x 4U 84HP 8 Slots

The VME64x 4U/84HP 8 Slots chassis by Hartmann Electronic is a 19" rack-mountable solution designed for industrial applications requiring a compact yet high-performance platform.
Specifications
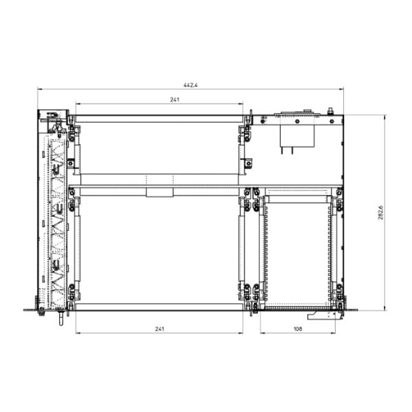
  • Form Factor: 4U height, 84HP width
  • Dimensions: Height: 177.8 mm, Width: 84HP (approx. 420 mm), Depth: 283.1 mm
  • Slots: 8 slots (7x 6U VME64x, 1x 3U power)
  • Backplane: Monolithic design with J0 connectors, automatic daisy chain/bus grant, active termination, and 2x P47 connectors
  • Cooling: Removable fan tray with replaceable dust filter and LED indicators for power/fan fail
  • Fans: 6 fans, 36.4 CFM each, 29 dB(A)
  • Airflow Direction: Left to right
  • Power Supply: Type: 300W cPCI, hot swap
  • Input: 90–264V AC, 47–63Hz
  • Output Voltages: +3.3V / 40A, +5V / 40A, +12V / 10A, -12V / 2A
Download Datasheet

The VME64x 4U/84HP 8 Slots chassis offers a compact and efficient solution for industrial applications requiring a 19" rack-mounted platform. Its monolithic backplane design and hot-swap power supplies ensure reliable performance, while the removable fan tray provides effective cooling. This chassis is ideal for applications where space is limited, and high performance is essential.

Features

Mounting 19" rack-mountable
Compliance IEEE 1101.1 and 1101.10/11
IEC 60297-3-101, -102, -103
Military Shipboard MIL-STD-810F: 514.5C-15 (vibration)
Military Highway MIL-STD-810F: 514.5 C-1 (vibration), 515.5-10 (shock)
Railway EN 50155-EN 1373 class 1 B, rolling stock (shock/vibration) Compact 4U height for space-constrained environments
Backplane 8-slot monolithic backplane supporting 6U VME64x modules
Hot Swap Dual hot-swap 300W cPCI power supplies
Fan Removable fan tray with replaceable dust filter and LED indicators
Standard Conforms to international standards

Downloads

技术参数

VME64x 4U 84HP 8 Slots
[ lmh0000260_300w.pdf, 1.52 MB, Oct.21.2025 ]

参考手册

VME64x 4U 84HP 8 Slots
[ vme64x-basic-1-2-4u-vers_1_4.pdf, 7.63 MB, Oct.21.2025 ]

General Safety Instruction
[ general-safety-instructions.pdf, 560.72 KB, Dec.16.2025 ]

Services

Kontron Services Brochure
[ kontron-services-brochure.pdf, 8.9 MB, Dec.17.2020 ]



back

垂询信息

Contact Tech Support

产品比较 (up to 5 products)

比较列表中没有产品。

Services

Stay connected

Contact Sales 1-888-294-4558 / 858-623-3094 Contact Sales Support 888-835-6676 / +1 450-437-5682 Contact Support
More Contact Options